Australia

# Sold $629,000 Considered

9 Kavui Street, Kawungan, Qld 4655

# Location

Description

Present Offers - Priced to sell Where potential meets opportunity. Set on an elevated 850 sqm block, this home offers plenty of space for families, investors, or those looking to make their mark.

Welcome to 9 Kavui Street, Kawungan.

Perched high on the ridge, this home boasts stunning views of Hervey Bay and the islands. It is perfectly positioned for relaxed living and entertaining.

Features that include:

- Open plan kitchen and dining area, ideal for gatherings

- Expansive living and family spaces that flow seamlessly

- Full-width undercover rear entertaining area, perfect for hosting BBQs and outdoor events - Bathroom with direct access from the entertaining area, adding convenience for guests - Fully tiled throughout, with plush carpet in the master bedroom for comfort - Side access with a concrete driveway, offering practical entry for boats or caravans - Rear garage and storage room with a workshop area, catering to hobbies or additional storage needs - Space for a pool on the large 850 sqm block, allowing you to create your own backyard oasis

- Built-in robes in all bedrooms, providing ample storage

- Three toilets and two bathrooms, ensuring plenty of facilities for family and visitors

- Generous space for parking a van, boat, or enjoying outdoor activities like playing catch or gardening

This property is primed for those seeking a blend of comfort, functionality, in a sought after location.

Priced to sell, it won't last long.

View More #

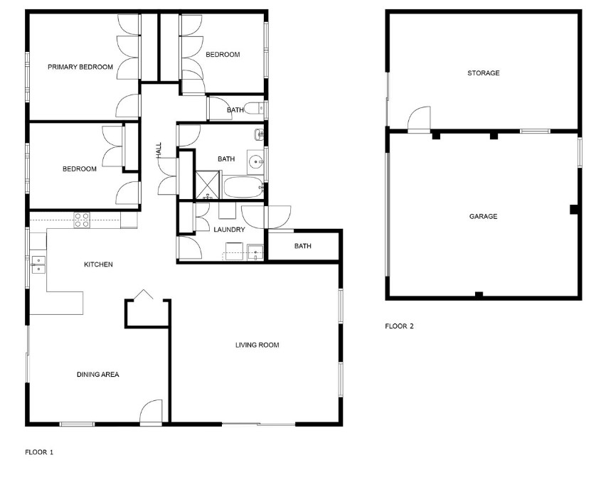
Floor Plans

Location

  • Contact the agency

    To request an inspection

  • # Call # Email

Max Ward

Agent Name

Jai Ingram

Agent Name

# Report Listing

Looking for a property?

  • Top listings
  • Investment
  • Development
  • Personal home
  • Price reports
  • Suburb reports

Do you own a property?

  • Place a free listing
  • Services for private advertisers
  • Guide to selling your home
  • Insurance
  • Improve the photos of your listing
  • Value your property for free

Are you a real estate proffesional?

  • Publish your agencies properties
  • Already a client? Log into your account
  • Advertising on Australian Real Estate
  • Australian Real Estate data technology for property insights
  • Real Estate courses