Australia

# Sold Offers Over $520,000

1/6 Witt Street, Torquay, Qld 4655

# Location

Description

Ultimate Hervey Bay Lifestyle Property...

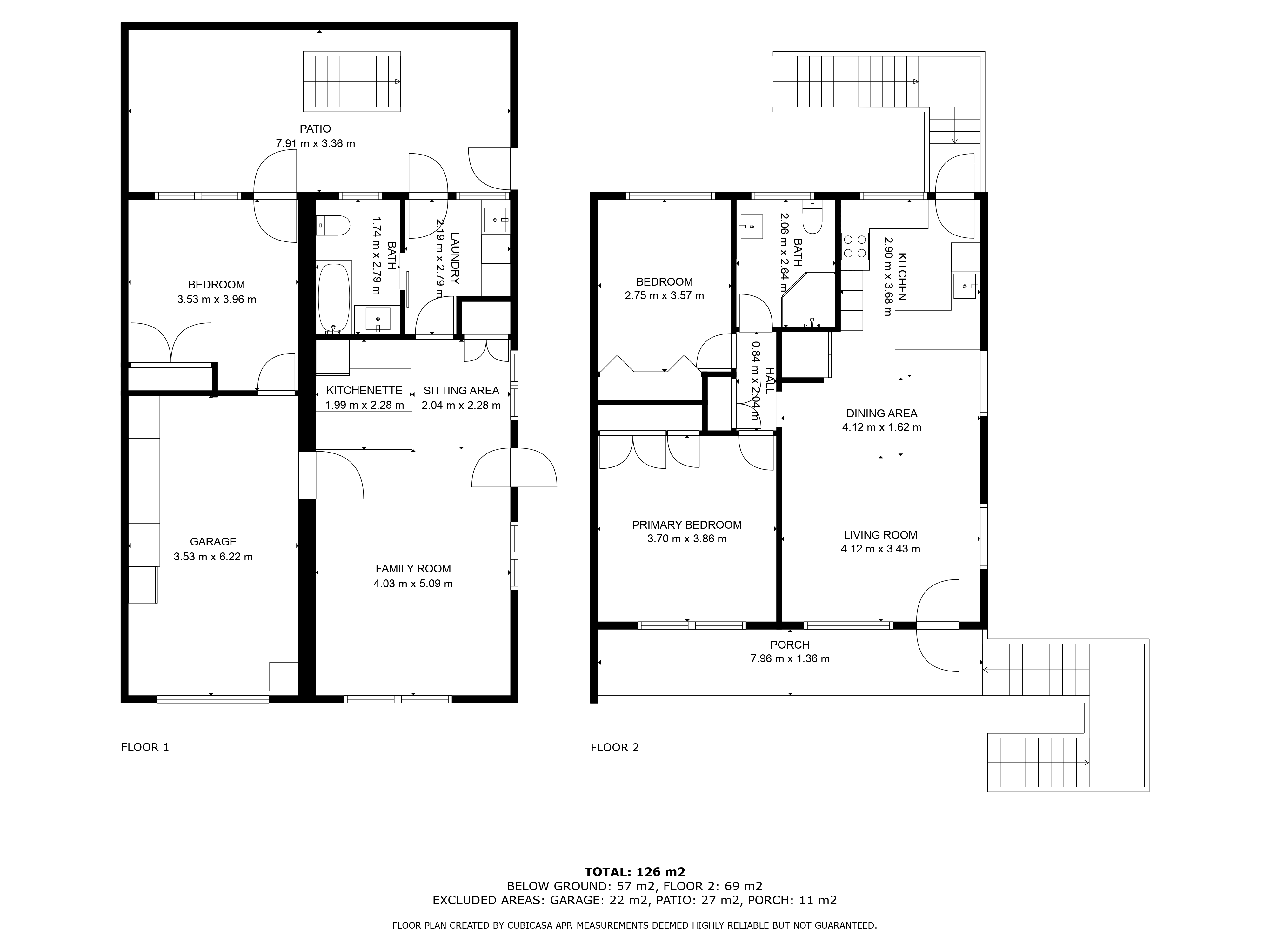
The opportunities are endless with this 3 bedroom townhouse located just a few doors away from the beautiful Torquay Beach, Cafes, Restaurants and Shops...

Tastefully renovated with dual living in mind, this property provides plenty of options; perfect to owner occupy with ample space for guests, rent out as a whole or explore holiday/ air bnb opportunities (STCA).

Low Body Corporate fee's - approx $2580 per year. Rental Appraisal $525-$575pw.

Upstairs • Modern kitchen with stone bench tops and plenty of storage • Open plan living and dining area with air conditioning

• 2 spacious bedrooms with built-ins • Well appointed bathroom • Front balcony

Downstairs • Open plan living and dining area with air conditioning • Spacious bedroom with air conditioning • Modern bathroom • Breakfast bar area with potential to be a 2nd kitchen • Laundry • Fully fenced courtyard

• Single garage and an additional car space for 2 cars • 16 solar panels (approx) and solar hot water

Positioned as an end townhouse of a complex of only 5, this is a highly sought after opportunity and won't last long.

Call Paige to arrange your inspection as this great townhouse needs to be inspected to appreciate all it has to offer.

View More #

Floor Plans

Location

  • Contact the agency

    To request an inspection

  • # Call # Email

Paige Smith

Agent Name

# Report Listing

Looking for a property?

  • Top listings
  • Investment
  • Development
  • Personal home
  • Price reports
  • Suburb reports

Do you own a property?

  • Place a free listing
  • Services for private advertisers
  • Guide to selling your home
  • Insurance
  • Improve the photos of your listing
  • Value your property for free

Are you a real estate proffesional?

  • Publish your agencies properties
  • Already a client? Log into your account
  • Advertising on Australian Real Estate
  • Australian Real Estate data technology for property insights
  • Real Estate courses